Продается крупный медицинский центр в Гродно. Полностью самостоятельный бизнес. Бизнес прибыльный с уверенной линией роста выручки.
Месторасположение: г. Гродно, пр. Я. Купалы 80/3, Сайт http://biar.by/
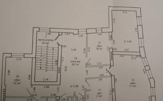
Площадь центра 234 метра, на которых расположены 6 кабинетов для оказания медицинских услуг (кабинет узи, 2 кабинета для консультативного приема, кабинет гинеколога/уролога и 2 манипуляционных кабинета) и вспомогательные помещения;
Текущее оказание медицинских услуг: дерматология, гинекология, УЗИ диагностика, хирургия, косметология и педиатрия. Перспективные услуги урология, неврология, проктология, будут доступны во втором квартале 2021 г.
Медицинский центр полностью укомплектован штатом: руководитель центра, более 20 работников медперсонала, 3 администратора центра. Ряд функций по обслуживанию бизнеса выполняются подрядными организациями на аутсорсе.
Медцентр БИАР работает с пациентами с апреля 2017 года. Документально подтвержденный рост выручки в 2020 году, по отношению к 2019 году, составил около 50%. При этом увеличение выручки произошло за счет увеличения числа пациентов, а не введения новых услуг.
Причина продажи: решение одного из учредителей продать свою долю в медцентре. По этой причине рассматривается продажа различного объема долей.
Представитель собственников: Ревотюк Алексей Михайлович +79266293862 (Viber, Whatsapp,Telegram), +375299999038 inforeal@mail.ru Личный сайт http://realleader.ru/





































